ベストカレンダーのロゴ ベストカレンダー

1/31・2/1開催|扉なしの開放間取りと離れ書斎見学会参加無料

扉なしリノベ見学会

開催期間:1月31日〜2月1日

📅 カレンダーに追加:GoogleiPhone/Outlook

扉なしリノベ見学会
この見学会で何が体験できるの?
扉を設けない間取りや壁色・床段差・開口高さによる空間分け、素材の質感や光の入り方、離れ書斎の動線と実際の居心地を現地で確認できる。施工費用感や成約特典の説明も受けられる。
どうやって予約するの?参加費はかかるの?
参加は事前予約制で特設ページ(https://kulabo.co.jp/events/115)から申込。参加費は無料。申込締切は2026年1月30日で、詳しい住所は予約確認後に案内される。

扉をなくして生まれる「開放感」と居心地のつくり方

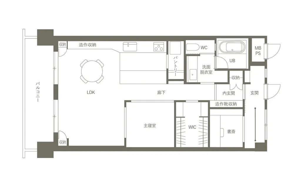
愛知県豊田市で開催されるリノベーション見学会では、マンション特有の閉塞感を解消するための具体的な設計手法が実物で確認できる。2026年1月31日(土)・2月1日(日)に公開される物件は、玄関とトイレ以外に扉を設けず、光・色・高さで空間の役割を分けるという手法を採用している。

写真ではわかりにくい素材の質感や光の入り方、実際の居心地を体感することで、間取りや素材選びの意図がより明確になる。特に視線と光の扱いを工夫することで、開放感を確保しながらも空間ごとの機能を保つ設計が実例として示される。

ズボラなまま、心地いい。扉をなくした開放的な間取りと、仕事に集中できる「離れ書斎」のあるマンションリノベ完成見学会を愛知県豊田市で開催決定 画像 2

扉を設けない設計の具体的な手法

扉を使わない代わりに、以下の要素で空間の違いを示している。これらの手法は、視覚的かつ物理的な“しきり”として機能し、閉鎖感を生まずに空間を分節する。

壁の色、床の段差、開口の高さを調整することで、視線の高さや光の入り方が変わり、結果として空間ごとの役割が自然に分離される設計である。

  • 壁の色:部屋ごとに色味を変えることで心理的な境界を作る。
  • 床の段差:段差があることで足の感覚が変化し、用途の切替えに寄与する。
  • 開口の高さ:天井高さや開口部の高さを変えることで視界と光の分配を制御する。
ズボラなまま、心地いい。扉をなくした開放的な間取りと、仕事に集中できる「離れ書斎」のあるマンションリノベ完成見学会を愛知県豊田市で開催決定 画像 3

実際の効果と狙い

これらの工夫により、光や風が住まい全体に行き渡りやすくなると同時に、各エリアが持つ役割が明確になる。扉を閉めることで生じる圧迫感や湿気の滞留を抑えつつ、プライバシーや用途の境界は保たれる。

見学会では、これらの調整がもたらす空間の違いを、実際に移動し、触れて確認できる点が大きな魅力となる。

ズボラなまま、心地いい。扉をなくした開放的な間取りと、仕事に集中できる「離れ書斎」のあるマンションリノベ完成見学会を愛知県豊田市で開催決定 画像 4

在宅ワークの課題にこたえる「離れ書斎」設計

このリノベーションの特色の一つは、在宅ワーク時のオンオフの切り替えを間取りで解決した点にある。書斎はあえて玄関を経由しないとアクセスできない“離れ”のような構成とし、身体的な動作を切替えのトリガーに利用している。

「一度靴を履く」というわずかな動作が、仕事モードへの切り替えとなる設計は、単なる空間配置以上の心理的効果を狙ったアプローチだ。短時間で集中したいワークスタイルに適合する。

ズボラなまま、心地いい。扉をなくした開放的な間取りと、仕事に集中できる「離れ書斎」のあるマンションリノベ完成見学会を愛知県豊田市で開催決定 画像 5

動線と心理的スイッチの設計

離れ書斎への動線は、玄関を通って入る“遠回り”を前提としている。これにより、日常生活から仕事へ切り替わるためのテンポラリーな区切りが生まれる。

この工夫は、ノートパソコンを開く瞬間や仕事を終える際の気持ちの切り替えを補助し、在宅ワークの生産性向上に寄与する。

ズボラなまま、心地いい。扉をなくした開放的な間取りと、仕事に集中できる「離れ書斎」のあるマンションリノベ完成見学会を愛知県豊田市で開催決定 画像 6

書斎の仕様と使い勝手

書斎は集中してこもれるよう視覚的な独立性を確保しつつ、必要に応じて生活動線とつながる設計が施されている。収納や照明の配置、床材の選定など、快適な作業環境を支える要素が組み込まれている。

見学会では、実際にその動線と書斎内の使い勝手を確かめることができ、具体的な家具配置や作業環境のイメージがつくりやすい。

ズボラなまま、心地いい。扉をなくした開放的な間取りと、仕事に集中できる「離れ書斎」のあるマンションリノベ完成見学会を愛知県豊田市で開催決定 画像 7

素材選びで実現する「ズボラなまま、心地いい」暮らし

設計だけでなく、暮らしやすさを左右するのが素材の選定である。本物件では「よく歩く場所」「素足で過ごす場所」など機能に応じた素材使い分けが取り入れられている。

素材の採用は、見た目だけでなく掃除のしやすさや湿気対策といった実務的な観点も重視されているため、手間をかけたくない生活者に配慮した仕様になっている。

ズボラなまま、心地いい。扉をなくした開放的な間取りと、仕事に集中できる「離れ書斎」のあるマンションリノベ完成見学会を愛知県豊田市で開催決定 画像 8

採用素材の詳細

各エリアに採用された素材は次の通りで、用途に応じた相応しい選択がなされている。

  • リビング・廊下:風合い豊かなオークの幅広フローリング。耐久性と温かみを兼ね備え、日常の歩行に適する。
  • 寝室・書斎:素足に心地よいサイザル麻を採用。触感が良くリラックス空間を演出する。
  • 水回り:掃除が楽な塩ビタイルを採用し、メンテナンス性を確保。

これらに加えて、マンション特有の湿気対策が考慮された素材選定が行われており、通気性や防湿性能を確保する工夫が施されている。

暮らしの手間を減らす設計思想

全体として目指しているのは、日常の手入れや掃除を楽にしつつ、素足で過ごしたくなる心地よさを両立させることだ。結果として「ズボラなまま、心地いい」というコンセプトに合致した住まいが具現化されている。

見学会では、これら素材の質感や足触りを確かめられるため、実際の暮らしに近い感覚で比較検討ができる。

見学会の開催情報、参加方法と特典

リノベーションスタジオKULABO(株式会社sumarch)が開催する見学会は、実際に同社でリノベーションを施したオーナー宅を見学する形式で、間取り・素材・設計のアイデアを実体験できるイベントである。開催日は2026年1月31日(土)と2月1日(日)、時間は10時から17時までとなる。

参加は無料だが、事前予約制のため申込締切は2026年1月30日(金)まで。オーナー様のプライバシー配慮のため、開催場所の詳しい住所は予約確認時に案内される点にも留意が必要だ。

見学会の開催概要(詳細)

イベントは来場無料で、見学によって得られる情報は間取り・素材・施工の実例と工事費用感など幅広い。物件は築41年、リノベーション費用は約1,890万円(2025年施工)、工事期間は約4ヶ月で、元は3LDKのスケルトン状態から2LDK+WICへと変更されている。

家族構成は2人暮らしを前提としたプランニングで、実生活に即した使い勝手を確認できる。

開催日
2026年1月31日(土)、2026年2月1日(日)
時間
10:00〜17:00
開催場所
愛知県豊田市(詳細は予約者に通知)
参加費
無料(事前予約制/申込締切:2026年1月30日(金))

来場特典と規約について

来場後にKULABOでリノベーションを成約した場合、成約金額に応じて家具のプレゼントが用意されている。500万円〜999万円の成約で家具10万円分、1,000万円以上の成約で家具20万円分が贈呈される。

特典には規約があり、詳細は特設イベントページにて確認する必要がある。イベントページのURLは以下の通りで、予約や規約確認はこちらから行える。

会社情報と見学会の要点まとめ

本見学会を主催するのは、株式会社sumarch(ブランド名:リノベーションスタジオKULABO)である。会社は愛知県名古屋市中村区に本社を置き、リノベーションを前提とした中古物件の紹介から企画・施工・アフターメンテナンスまで一貫して対応する体制を持つ。

以下の表は、本記事で扱った見学会の主要情報と本件リノベーションの主要データを整理したものである。参加を検討する際の確認項目として参照できる。

項目 内容
プレスリリース日 2026年1月14日 08:20
主催 株式会社sumarch(リノベーションスタジオKULABO)
見学会開催日 2026年1月31日(土)、2026年2月1日(日)
開催時間 10:00〜17:00
開催場所 愛知県豊田市(詳細住所は予約者に通知)
参加費 無料(事前予約制/申込締切:2026年1月30日(金))
物件の概要 築年数:41年 / 家族構成:2人暮らし / before:3LDK(購入時スケルトン)→ after:2LDK+WIC
リノベーション費用 約1,890万円(2025年施工)
工事期間 約4ヵ月
来場特典(成約者対象) 成約金額500万〜999万:家具10万円分 / 成約金額1,000万以上:家具20万円分(特典規約あり)
問い合わせ先 リノベーションスタジオお客様総合窓口 0120-85-7755(10:00〜18:00、年中無休 ※年末年始除く)
本社所在地 〒450-6421 愛知県名古屋市中村区名駅三丁目28番12号 大名古屋ビルヂング21F
代表者 代表取締役 鳥居 儀彰
関連リンク https://kulabo.co.jp/events/115https://sumarch.co.jp/

以上のとおり、今回の見学会は扉を使わない間取り、玄関を経由する“離れ書斎”、用途に応じた素材選びといった具体的な設計要素を実際の住まいで確認できる機会として企画されている。詳細や予約は特設イベントページで確認できる。