ベストカレンダーのロゴ ベストカレンダー

12/13・14 名古屋で曲線と光のミニマル見学会

マンションリノベ見学会

開催期間:12月13日〜12月14日

📅 カレンダーに追加:GoogleiPhone/Outlook

マンションリノベ見学会
どうやって参加するの?
事前予約制で参加費は無料。特設ページ(https://kulabo.co.jp/events/114)から申し込みを行い、申込締切は2025年12月12日。開催は2025年12月13・14日10:00〜17:00。詳しい住所は予約者に案内されます。
見学会で具体的に何が見られるの?
曲線のR壁と間接照明で演出されたLDK、家電を扉内に収めるオーダーキッチン、洗う→干す→しまうが一連で完結するランドリールーム等、素材感や光の入り方を実物で体感できます。

曲線と光でつくる、海外風ミニマルな住まいを実際に見る機会

愛知県名古屋市でリノベーション事業を展開する株式会社sumarch(リノベーションスタジオKULABO)が、実際に同社が手がけたオーナー宅を見学できる「マンションリノベーション見学会」を、2025年12月13日(土)・14日(日)に名古屋市昭和区で開催します。今回の見学物件は、やわらかな曲線の壁と間接照明が織りなすLDKや、生活感を隠す設計のオーダーキッチン、効率的な家事動線を備えた海外風ミニマル空間が特徴です。

写真や図面だけでは伝わりにくい素材の質感や光の入り方、空間の広がりを体感できる点が本見学会の主な魅力です。プレスリリースの内容を基に、見どころや開催概要、特典、KULABOの事業概要までをわかりやすく整理して伝えます。見学は事前予約制で参加費は無料となっています。

【2日間限定開催】生活感を隠して整える、海外風ミニマル空間。曲線と光が魅せるリノベ見学会|名古屋市昭和区 画像 2

設計の工夫と具体的な見どころ──やわらかな陰影と隠す収納

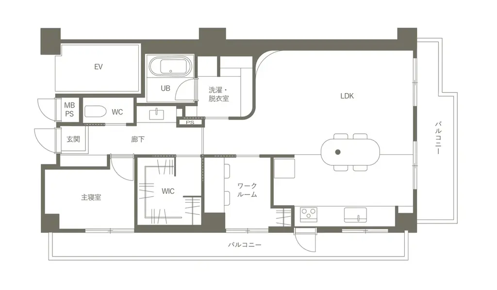
本物件は、28年経過したマンションを対象に、約2,030万円(2025年施工)を投じて行われたフルリノベーション案件です。打ち合わせ期間は約3か月、工事期間も約3か月というスケジュールで、施工後の間取りは【before】3LDKから【after】2LDKへと変更されています。

下記に、特に注目すべきポイントを整理します。各項目には設計の意図と期待される暮らしの変化を併記しています。

  • 曲線の壁と間接照明によるLDKの演出

    リビングに設けられたR(曲線)壁と間接照明の組合せは、空間全体に柔らかな陰影を作り出し、開放感とやさしさを両立させています。曲線壁のニッチは装飾や小物を置くことでアクセントとなり、日常にさりげない表情を加えます。

    素材の手触りや光の反射具合は、現地で見てこそ把握できるため、実物の確認が重要です。

  • 生活感を隠すオーダーキッチン

    完全オーダーメイドのキッチンは、レンジフードや家電を扉内に収める設計で、壁付けにすることでLDKの視線が抜け、空間の広がりを演出しています。家具のように馴染む仕上げにより、日常の生活感を抑えたミニマルな印象を実現しています。

    機能面では収納計画を重視しており、キッチン周りがすっきりすることで動線も整い、調理や片付けが効率化されます。

  • 家事動線の合理化:洗う・干す・しまうが一連で完結

    ランドリールームには室内干し用のパイプや可動棚が配置され、洗濯から乾燥(室内干し)、そのまま収納までの一連の家事を同一空間で完結できるよう計画されています。動線短縮は日常の時間負担を減らすだけでなく、家事の心理的負担も軽減します。

    実際のスペース感や可動棚の使い勝手は見学で確認することが可能です。

【2日間限定開催】生活感を隠して整える、海外風ミニマル空間。曲線と光が魅せるリノベ見学会|名古屋市昭和区 画像 3

見学会の開催概要と参加にあたっての注意点

開催日は2025年12月13日(土)と14日(日)の2日間、時間は両日とも10時から17時までです。会場は愛知県名古屋市昭和区。参加は無料ですが事前予約制で、申込締切は2025年12月12日(金)となっています。

オーナー宅のプライバシーを配慮し、詳細な住所は予約者のみに案内されます。参加希望者は必ず特設ページ(下記リンク)から内容を確認の上で申し込みを行ってください。

特設ページ:https://kulabo.co.jp/events/114

開催日
2025年12月13日(土)・14日(日)
時間
10:00~17:00
開催場所
愛知県名古屋市昭和区(詳しい住所は事前予約者に案内)
参加費
無料(事前予約制)
申込締切
2025年12月12日(金)
【2日間限定開催】生活感を隠して整える、海外風ミニマル空間。曲線と光が魅せるリノベ見学会|名古屋市昭和区 画像 4

来場特典と成約特典、KULABOの提供するサービス範囲

来場者限定の成約特典として、当社でリノベーションを成約した場合に家具を進呈するキャンペーンが実施されます。成約金額に応じた特典額は下記の通りです。

成約金額 プレゼント内容
500万円~999万円 家具10万円分
1,000万円以上 家具20万円分

特典には規約が設定されています。詳細は特設イベントページで確認してください。成約に至った場合の具体的な適用条件や対象範囲は、ページ記載の規約に従います。

KULABO(リノベーションスタジオKULABO)は、愛知・岐阜・東京都(一部エリア除く)を対象に、中古戸建・中古マンションのリノベーションや大規模リフォームをワンストップで提供しています。中古物件の紹介からプラン設計、施工、アフターサービスまで一貫して対応し、耐震や断熱工事も含めた幅広い提案が可能です。

【2日間限定開催】生活感を隠して整える、海外風ミニマル空間。曲線と光が魅せるリノベ見学会|名古屋市昭和区 画像 5

KULABOの業務・サポート範囲と拠点

提供するサービスは、部分リフォームからフルリノベーション、耐震補強、断熱改修など多岐にわたります。デザイン性と価格のバランスを重視し、顧客ニーズや予算に応じた適正価格での提案を行います。

同社の拠点(スタジオ)は中村スタジオ、千種スタジオ、昭和スタジオ、緑スタジオ、一宮スタジオ、春日井スタジオ、岡崎スタジオ、長久手スタジオ、豊田スタジオ、恵比寿スタジオと多彩に展開しており、相談やモデルの確認が可能です。

【2日間限定開催】生活感を隠して整える、海外風ミニマル空間。曲線と光が魅せるリノベ見学会|名古屋市昭和区 画像 6

会社の基本情報と問い合わせ先

会社名は株式会社sumarch。代表取締役は鳥居儀彰氏で、コーポレートサイトとKULABOの情報は下記の通りです。

本社所在地は〒450-6419 愛知県名古屋市中村区名駅三丁目28番12号 大名古屋ビルヂング19Fです。連絡先はTEL:052-526-1395、FAX:052-526-1396。一般の方からの問い合わせはリノベーションスタジオお客様総合窓口0120-85-7755(10:00~18:00、年中無休・年末年始除く)で受け付けています。

【2日間限定開催】生活感を隠して整える、海外風ミニマル空間。曲線と光が魅せるリノベ見学会|名古屋市昭和区 画像 7

物件データと見学時に確認すべきポイントの整理

今回の見学対象物件に関する基本データを以下に整理します。見学の際には、実際の寸法感や素材感、光の入り方、収納の収まりなどを確認すると設計の意図を理解しやすくなります。

また、間取り変更や設備の仕様、施工時の工夫点などはスタッフから説明が行われるため、気になる点は事前にメモしておくと効率的です。

項目 内容
家族構成 ご夫婦
築年数 28年
リノベーション費用 約2,030万円(2025年施工)
打合せ期間 約3ヶ月
工事期間 約3ヶ月
間取り変更 【before】3LDK → 【after】2LDK

見学会では上記のデータに加え、実際の仕上がり・設備の使用感、収納の容量、動線の広さなどを体感することができます。特にオーダーキッチンの扉内収めやランドリールームの可動棚などは、日常の使い勝手を直接確かめる良い機会となります。

【2日間限定開催】生活感を隠して整える、海外風ミニマル空間。曲線と光が魅せるリノベ見学会|名古屋市昭和区 画像 8

今回の記事内容の要点整理

以下の表は、本記事で触れた見学会の主要情報を簡潔にまとめたものです。参加を検討する際や情報を整理する際に参照してください。

項目 内容
イベント名 マンションリノベーション見学会(KULABO主催)
開催日時 2025年12月13日(土)・14日(日) 10:00~17:00
開催場所 愛知県名古屋市昭和区(詳細は予約者に案内)
参加費 無料(事前予約制、申込締切:2025年12月12日)
見どころ 曲線壁+間接照明のLDK、オーダーキッチンによる生活感の抑制、家事動線の整備
リノベーション費用 約2,030万円(2025年施工)
成約特典 500万~999万:家具10万円分、1,000万以上:家具20万円分(規約あり)
会社情報 株式会社sumarch(リノベーションスタジオKULABO) 本社:名古屋市中村区、代表:鳥居儀彰、設立2009年11月、従業員数250名(2025年4月時点)
問い合わせ リノベーションスタジオお客様総合窓口 0120-85-7755(10:00~18:00)
関連リンク https://kulabo.co.jp/events/114

本記事はプレスリリースの情報に基づき、見学会の趣旨、見どころ、開催概要、特典、及び主催企業の事業内容を整理してお伝えしました。見学会の詳細や参加申込、特典の適用条件は特設ページで確認してください。