ベストカレンダーのロゴ ベストカレンダー

4月25・26日開催|昭和区で体感するKULABOのリノベ

マンションリノベ完成見学会

開催期間:4月25日〜4月26日

📅 カレンダーに追加:GoogleiPhone/Outlook

マンションリノベ完成見学会
見学会はどうやって申し込めばいいの?
特設ページからの事前予約が必要で参加は無料です。申込締切は2026年4月24日、来場者にのみ詳しい会場住所を案内。各日10:00〜17:00開催。
現地で具体的に何が見られるの?
素材の質感や照明の陰影、壁付けオーダーキッチン、曲線のR壁による空間演出、ランドリールームの家事動線や収納計画を実際に確認できます。成約特典あり。

名古屋市昭和区で開催される「マンションリノベ完成見学会」の概要

リノベーションスタジオKULABO(運営:株式会社sumarch)は、実際に同社でフルリノベーションを行ったマンションを会場に、完成見学会を開催します。開催日は2026年4月25日(土)・26日(日)、時間は10時から17時までで、会場は愛知県名古屋市昭和区です。参加は無料ですが事前予約制となっており、申込締切は2026年4月24日(金)です。

見学会では、写真や平面図だけでは伝わりにくい素材の質感、照明の陰影、動線の実際の使い勝手などをリアルに体感できます。オーナー様のプライバシー保護のため、詳しい住所は予約をされた方のみに案内されます。イベントの詳細と予約は特設ページ(https://kulabo.co.jp/events/121)で確認できます。

「自分たちの理想の空間で暮らしたい」から始まった物件探し。壁付けキッチンで叶えた開放感と、動かせない配管をデザインに変えた、マンションリノベ完成見学会を名古屋市昭和区で開催 画像 2

開催日程と参加方法

開催日:2026年4月25日(土)、26日(日)。時間:各日10時〜17時。参加費:無料。申込締切:2026年4月24日(金)。

参加は事前予約制です。予約が確認できた方にのみ、会場の詳細住所をお知らせします。予約は特設イベントページから行ってください。会場はオーナー宅のため、当日はプライバシー保護に配慮した運営が行われます。

「自分たちの理想の空間で暮らしたい」から始まった物件探し。壁付けキッチンで叶えた開放感と、動かせない配管をデザインに変えた、マンションリノベ完成見学会を名古屋市昭和区で開催 画像 3

展示内容と現地で確認できるポイント

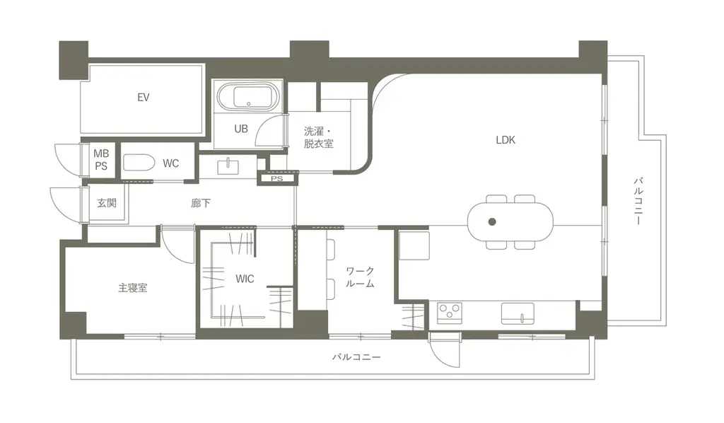
見学会では、ビフォー・アフターの写真、ビフォー・アフターの間取り図(平面図)、施工後の実際の空間を見比べて確認できます。特に間取り変更や素材選定、照明計画などの設計的工夫を現地で体感することが想定されています。

会場ではリビング・ダイニング・キッチン(LDK)、ランドリールーム、収納計画などを中心に見学できます。画像素材やプレスリリースで使用された写真はダウンロード可能で、プレスキットとして提供されています。

「自分たちの理想の空間で暮らしたい」から始まった物件探し。壁付けキッチンで叶えた開放感と、動かせない配管をデザインに変えた、マンションリノベ完成見学会を名古屋市昭和区で開催 画像 4

設計とデザインの要点:壁付けキッチンと曲線の壁がつくる開放感

今回の物件は築28年のマンションを対象に2025年に施工されたフルリノベーションです。工事費用は約2,030万円、打合せ期間は約3ヶ月、工事期間は約3ヶ月でした。プランはご夫婦の家族構成を前提に設計されています。

設計では「自分たちの理想の空間で暮らしたい」という住まい手の希望を起点に、視線の抜けを意識した壁付けキッチンや、曲線を用いた壁・間接照明などを取り入れ、開放感とやわらかな雰囲気を両立させています。

「自分たちの理想の空間で暮らしたい」から始まった物件探し。壁付けキッチンで叶えた開放感と、動かせない配管をデザインに変えた、マンションリノベ完成見学会を名古屋市昭和区で開催 画像 5

曲線の壁と間接照明による空間演出

リビングのR(曲面)壁に間接照明を組み合わせた設計により、空間全体にやわらかな陰影が生まれます。曲線壁面にはニッチが設けられており、お気に入りの小物をさりげなくディスプレイできる仕組みです。

こうしたディテールは、写真だけでは把握しにくい素材の質感や光の表情を現地で確認することで、設計意図がより理解しやすくなります。照明計画と壁面の構成によって生まれる落ち着いた雰囲気が特徴です。

「自分たちの理想の空間で暮らしたい」から始まった物件探し。壁付けキッチンで叶えた開放感と、動かせない配管をデザインに変えた、マンションリノベ完成見学会を名古屋市昭和区で開催 画像 6

壁付けオーダーキッチンの設計とメリット

キッチンは完全オーダーメイドで設計され、レンジフードや家電を収納の中に収める設計がなされています。壁付けにすることでLDKの視線が抜け、空間が広く感じられる点が設計上の大きな特徴です。

収納計画は家具のように空間に馴染むデザインに統一され、生活感を抑えたミニマルな印象を実現しています。配管など動かせない設備の要素も、デザインに取り込むことで機能を見せずに美しくまとめています。

「自分たちの理想の空間で暮らしたい」から始まった物件探し。壁付けキッチンで叶えた開放感と、動かせない配管をデザインに変えた、マンションリノベ完成見学会を名古屋市昭和区で開催 画像 7

家事動線と収納計画:暮らしやすさを優先したランドリールーム

家事動線を重視したプランニングとして、ランドリールームに「洗う・干す・しまう」を一か所で完結できる設備・収納を配置しています。日常の作業がスムーズになり、暮らしの快適性が向上することを意図した設計です。

具体的には、室内干し用のパイプや可動棚を設け、洗濯から収納までを効率よく行えるように工夫されています。これにより、天候や時間を問わず洗濯動線が安定する点も利点として挙げられます。

「自分たちの理想の空間で暮らしたい」から始まった物件探し。壁付けキッチンで叶えた開放感と、動かせない配管をデザインに変えた、マンションリノベ完成見学会を名古屋市昭和区で開催 画像 8

収納と動線の詳細

ランドリールーム内の可動棚は衣類や洗剤、家事道具の収納に柔軟に対応します。室内干し用のパイプは高さや位置の調整が可能で、部屋の使い方に合わせて配置を変更できます。

また、キッチン周りの収納は家電収納や調理道具を隠す設計となっており、リビング側からは生活感が見えにくいよう配慮されています。これらの収納計画は実際に見学会で確認することで、寸法感や使用感を確かめられます。

「自分たちの理想の空間で暮らしたい」から始まった物件探し。壁付けキッチンで叶えた開放感と、動かせない配管をデザインに変えた、マンションリノベ完成見学会を名古屋市昭和区で開催 画像 9

KULABO(株式会社sumarch)の事業内容と見学会特典・問い合わせ先

リノベーションスタジオKULABOは、愛知県・岐阜県・東京都(一部エリア除く)を対象に、中古戸建・中古マンションのリノベーションと大規模リフォームを提案・施工しています。物件紹介からプラン提案、施工、アフターサービスまで一貫して対応します。

対応範囲は部分リフォームからフルリノベーション、耐震工事、断熱工事まで多岐にわたります。デザイン性とコストのバランスに配慮して、顧客の要望と予算に合わせたプランを提供することを掲げています。

見学会来場特典と特典規約

見学会に来場後、KULABOでリノベーション工事を成約した場合に家具プレゼントの特典が用意されています。成約金額に応じた特典は以下の通りです。

  • 成約金額500万円〜999万円:家具10万円分プレゼント
  • 成約金額1,000万円以上:家具20万円分プレゼント

特典には規約があり、詳しくは特設イベントページで確認する必要があります。プレゼントの適用条件や除外事項などは、事前に確認してください。

会社概要と問い合わせ先

運営会社は株式会社sumarch(ブランド名:リノベーションスタジオKULABO)で、代表取締役は鳥居儀彰氏です。本社所在地は名古屋市中村区名駅三丁目28番12号 大名古屋ビルヂング21Fです。設立は2009年11月、従業員数は300名(2026年4月時点)です。

コーポレートサイト
https://sumarch.co.jp/
KULABO(ブランド)HP
https://kulabo.co.jp/
お問い合わせ(一般の方)
リノベーションスタジオお客様総合窓口 0120-85-7755(10:00〜18:00 年中無休、年末年始を除く)

運営会社は複数のスタジオを展開しており、中村スタジオ、千種スタジオ、昭和スタジオ、緑スタジオ、一宮スタジオ、春日井スタジオ、岡崎スタジオ、長久手スタジオ、豊田スタジオ、恵比寿スタジオが挙げられています。対象エリアは愛知県・岐阜県・東京都(一部エリア除く)です。

今回の見学会で確認できる要点とイベント概要のまとめ

以下の表は、本見学会で押さえておきたい主要項目を整理したものです。日時や会場、見どころ、費用や申込期限など、参加前に必要な情報をまとめています。情報はプレスリリースに基づいています。

項目 内容
イベント名 KULABO マンションリノベ完成見学会(愛知県名古屋市昭和区)
開催日 2026年4月25日(土)、26日(日)
時間 10:00〜17:00
開催場所 愛知県名古屋市昭和区(住所は予約者にのみ開示)
参加費 無料(事前予約制)
申込締切 2026年4月24日(金)
見どころ 曲線のR壁と間接照明によるやわらかなLDK、壁付けオーダーキッチン、ランドリールームの家事動線、収納計画
HOUSE DATA
  • 家族構成:ご夫婦
  • 築年数:28年
  • リノベ費用:約2,030万円(2025年施工)
  • 打合せ期間:約3ヶ月
  • 工事期間:約3ヶ月
来場特典
  1. 成約金額500万〜999万:家具10万円分
  2. 成約金額1,000万以上:家具20万円分
主催 株式会社sumarch(リノベーションスタジオKULABO)
問い合わせ先 リノベーションスタジオお客様総合窓口 0120-85-7755(10:00〜18:00、年中無休※年末年始除く)
関連リンク https://kulabo.co.jp/events/121

本記事はプレスリリースの情報に基づき、見学会の開催概要、設計上の特徴、会社情報、来場特典などの情報を整理してお伝えしました。参加を検討する場合は、特設ページで最新情報と特典規約をご確認のうえ、予約手続きを行ってください。